Scaling Your Architecture Firm Just Got Easier.
Reliable, NCS-Compliant Backend Drafting & BIM Production for U.S. Architects.
Stop Babysitting Freelancers.
Outsourcing shouldn’t feel like taking on a second job. Most offshore drafters just trace lines, leaving the heavy burden of technical resolution entirely on your shoulders. At Grupo 284, we operate as a true backend partner. We don't just draft; we apply constructability logic, adhere strictly to the National CAD Standard (NCS), and work natively in imperial units. We deliver highly coordinated sets that require your final approval, not your constant micromanagement—freeing your time to focus on design intent, client acquisition, and scaling your firm.
Step 1: Design Handoff: You send your schematic designs, redlines, or point clouds.
Step 2: Production & Coordination: Our backend team builds the BIM or 2D CAD models and drafts the sheets, resolving basic spatial conflicts.
Step 3: Ready for Review: You receive clean, layered CAD/Revit/Archicad files and PDF sets ready for your final QC and engineering overlay.
THE PROCESS
OUR SERVICES
-
Full development of architectural sets ready for city review.
NCS-compliant drafting, imperial units, and precise constructability logic.
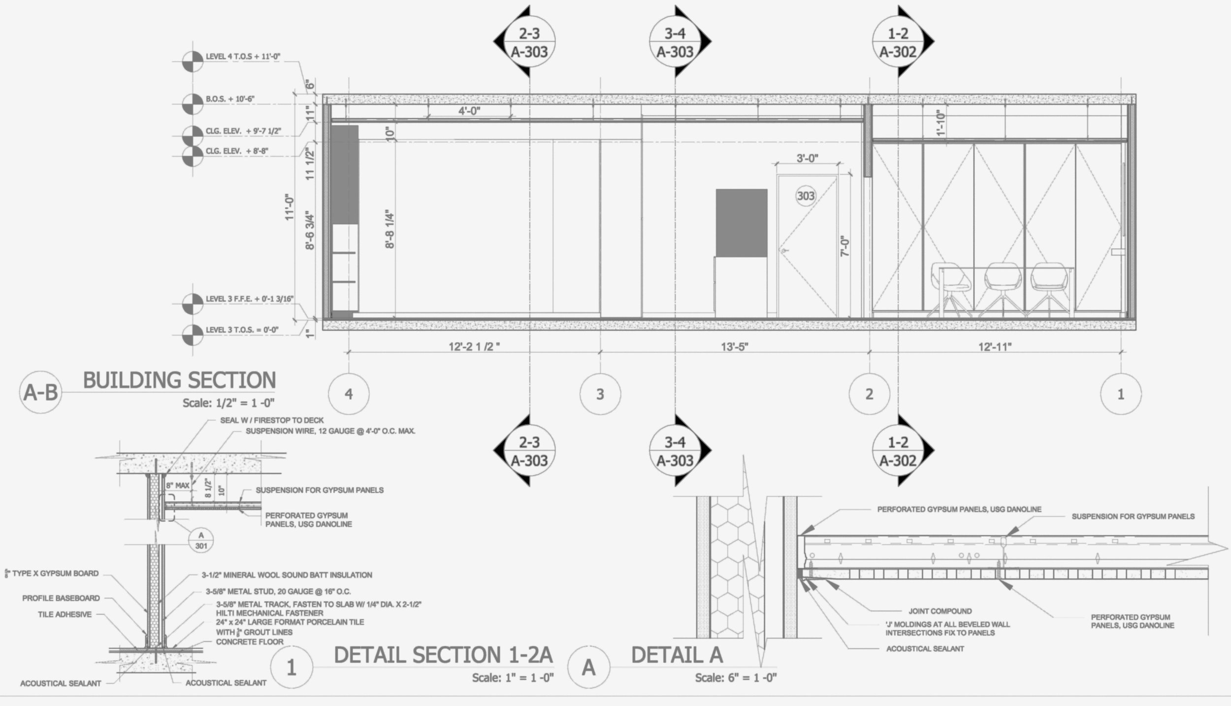
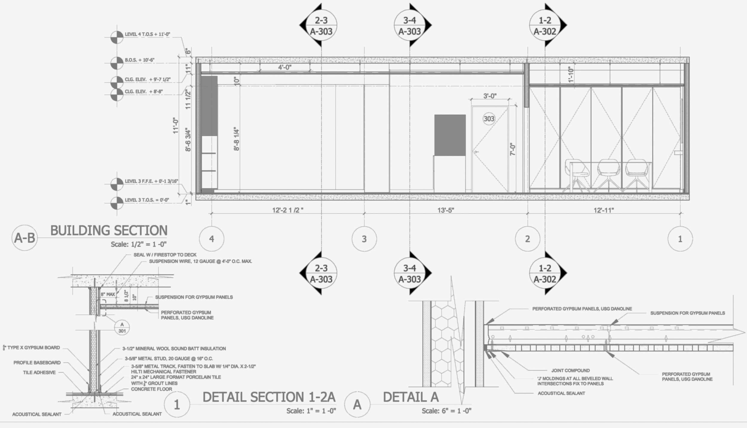
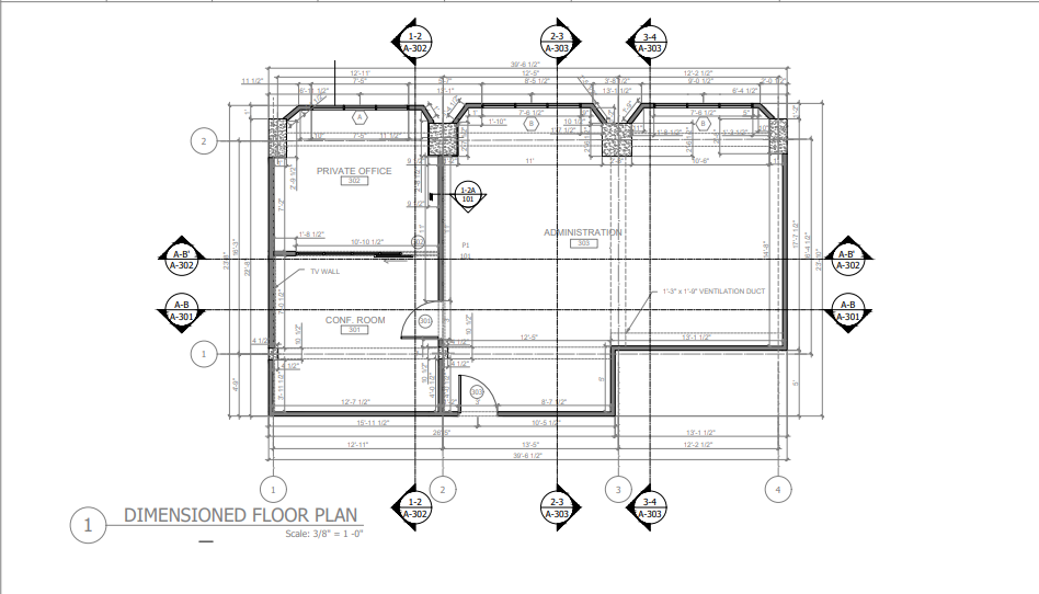
Deliverables: Dimensioned Floor Plans, RCPs, Interior/Exterior Elevations, Wall Sections, and Millwork Detailing.
-
Advancing your schematic sketches into fully coordinated 2D layouts and 3D models.
Resolving spatial, material, and basic structural logic before the CD phase.iption text goes here
-
High-fidelity Revit or Archicad modeling from your CAD files or sketches.
Basic Clash Detection (Architecture vs. MEP/Structure) to prevent RFIs on-site.
-
Converting field sketches, PDFs, or point clouds into accurate, layered AutoCAD/Revit/Archicad baseline models.
-
Commercial-grade 3D renderings to help you sell your conceptual designs to your clients.
What We Do:
End-to-End Architectural Production.
Construction Documents (CDs) & Permit Sets
Design Development (DD) Support
BIM Modeling & Coordination
Across all these services, our core focus remains the same: the flawless technical execution of your architecture. We produce NCS-compliant documentation engineered to pass city reviews efficiently. By taking over the entire backend of your projects, we empower your in-house team to focus exclusively on what matters most: creative design, client relations, and firm growth.
-
Founded in 2014, Grupo 284 was built to bridge the gap between U.S. design firms and high-quality, reliable technical execution. Based in South America, we offer a strategic nearshore advantage: we operate in your time zone (EST/AST) for seamless real-time communication. Led by a team with hands-on field and architectural engineering experience, we don’t just draw from a desk—we understand how buildings go together. When you partner with us, you aren't hiring an isolated drafter; you are plugging into a fully equipped architectural production studio dedicated to U.S. standards.
-
Valencia, Edo. Carabobo, Venezuela postcode 2001.
Operating globally, maintaining US production standardsripción del elemento
Meet the Team
-

Laura Acosta
FOUNDER / ARCHITECT
-

Ismael El Hani
SENIOR BIM COORDINATOR
-

ELIZABETH LOPEZ
ARCHITECT
PROJECTS
Ready to expand your production capacity?
Let’s discuss your next project.
Acerca de
location
Valencia, Edo. Carabobo, Venezuela postcode 2001.
Operating globally, maintaining US production standards
services
CDs & Permit Sets
DD Support
Commercial As-Builts